Nice Wilson – Appartement 3 pièces au dernier étage avec balcons
Résumé
- Mis à jour le :
- septembre 29, 2022
- 3 Pièces
- 2 Chambres
La description
Un vrai coup de coeur !
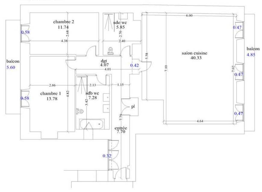
Situé en plein cœur de Nice, découvrez ce bel appartement de type 3 pièces de 90 m² entièrement rénové en dernier étage.
Il se compose d’un hall d’entrée, d’un spacieux séjour lumineux de 40 m² avec cuisine ouverte, de deux chambres confortables, d’une salle de bains, d’une salle d’eau avec deux WC, ainsi que de deux balcons (5,60 m² et 4,85 m²).
Installé dans un immeuble ancien dont les parties communes et la façade ont été récemment rénovées, ce bien marie avec élégance le cachet de l’ancien et le confort contemporain.
Emplacement idéal : en centre-ville, tout est accessible à pied !
Nb de lots : 27 (15 appartements) ; Ch/an : 1256 € ; TF : 1503 € ; DPE : D & B
Les informations sur les risques auxquels ce bien est exposé sont disponibles sur le site Géorisques : georisques.gouv.fr
Honoraires agence de 5% TTC inclus à charge vendeur.
Diagnostic de performance énergétique
A+
A
B
C
D
E
F
G
H
Diagnostic d'emission de GSE
A
B
C
D
E
F
G


















